6.1 System Overview/Description
The major components of the DEIMOS Spectrograph are contained in two large enclosures on the Nasmyth platform and a relatively small VME Crate located in the Control Room of the telescope. The enclosure containing the optics, CCD Detectors, Guide Cameras, and other system components is referred to as the Instrument Enclosure. The Electronics Vault is where the VME-based dc servo motor controllers are located, along with instrument control electronics which does not need to be inside the Instrument Enclosure where the heat they produce will effect the instrument. Finally, the VME Crate in the Control Room contains two UCSD VME Boards, an industrial standard interface board (e.g., FDDI fiber link), a bulk Memory/Embedded CPU card, a VME chassis, a power supply, and a UPS.
In the HIRES system, the VME Crate is located on the Nasmyth platform, but we now think that it will be more straightforward and simpler to bring the signals directly down to the conveniently located and thermally controlled environment of the control room.
Briefly the following list outlines the Instrument Control and Electronics Vault components:
This outline is the order in which this material is covered in this chapter. More details of the Electronics Vault components will be discussed in Section 6.2, Electronics Vault.
The Instrument Control and Electronics Vault for DEIMOS are very similar to those of the HIRES system. Different system components are used in DEIMOS, but the ratio of DEIMOS to HIRES motors is used to estimate the number of control and monitoring devices in DEIMOS. We have used this ratio to estimate space and costs. In some cases the DEIMOS total for one beam is multiplied by two for the two beam configuration.
The instrument control electronics is best described by breaking down the system into major subsystems. Within each subsystem the electronics will control either dc motors (with encoders), air cylinders, or other devices such as sensors, additional encoders, limit switches, etc. The following table shows these subsystems and types of control device, approximately in the order of the incoming light for a single beam (refer to Figure 6.1):
| Subsystem | Motors | Air Cylinders | Other Devices | |
|---|---|---|---|---|
| 1 - Instrument Rotator | 1 main drive | 1 additional encoder | ||
| 2 - Hatch | 1 actuator | |||
| 3 - TV System | 2 filter wheels * | |||
| 2 aperture controls * | ||||
| 2 focus motors * | ||||
| 1 slit-viewing motor | ||||
| 4 - SlitMask | 3 installation | 3 locking actuators | ||
| 3 fine locating ** | ||||
| 5 - Flexure Compensation | 1 tip | |||
| 1 tilt | ||||
| 6 - Gratings | 1 slide | 1 locking/clamp | ||
| 2 tilt, option for 3 | ||||
| 7 - Filter Slide | 1 slide | |||
| 8 - CCD Dewars | 1 focus | 2 shutter actuators | ||
| 9 - Liquid Nitrogen Autofill | 1 manual valve | 2 supply level sensors | ||
| 2 CCD level sensors | ||||
| 3 limit switches -- for manual valve | ||||
| 10 - TOTAL | 21 | 8 | 8 |
Notes: * Two TVs are used for one beam.
** The fine locating motors for the double beam configuration will be installed but not used for the single beam system. No other related electronics for these motors will be installed for the single beam system.
It has been common practice to use dc servo motors at Lick and Keck for some time now. The nature of the instrumentation requirements warrants this technology over other options such as stepper motors or open-loop dc motors in most cases, and we are familiar with the Galil servo systems chosen here. The dc motors are also ordered with encoders mounted directly on the motor. More on this is covered in Section 6.3, DC Servo Motors.
The following table shows the same subsystems and control devices for two beams:
| Subsystem | Motors | Air Cylinders | Other Devices | |
|---|---|---|---|---|
| 1 - Instrument Rotator | 1 main drive | 1 additional encoder | ||
| 2 - Hatch | 1 actuator | |||
| 3 - TV System | 2 filter wheels | |||
| 2 aperture controls | ||||
| 2 focus motors | ||||
| 1 slit-viewing motor | ||||
| 4 - SlitMask | 6 installation | 6 locking actuators | ||
| 3 fine locating ** | ||||
| 5 - Flexure Compensation | 2 tip | |||
| 2 tilt | ||||
| 6 - Gratings | 2 slides | 2 locking/clamps | ||
| 4 tilts | ||||
| 7 - Filter Slide | 2 slides | |||
| 8 - CCD Dewars | 2 focus | 4 shutter actuators | ||
| 9 - Liquid Nitrogen Autofill | 1 manual valve | 2 supply level sensors | ||
| 4 CCD level sensors | ||||
| 3 limit switches -- for manual valve | ||||
| 10 - TOTAL | 31 | 14 | 10 |
At this point there are a number of additions to this table that need to be made for control devices other than motors and air cylinders. These items get into a level of detail of
the design that has not yet been determined. For now, the ratio of motors between HIRES
and DEIMOS is assumed to be the same as the ratio of these other control devices.
6.2 Electronics Vault
The vault planned for DEIMOS is the same size as that for HIRES. The CCD Controller electronics in the HIRES vault will be moved out of the vault for DEIMOS. Given the
current plan to have one VME chassis controlling up to 36 or 40 motors with a comparable
increase in digital and analog I/O, enough space will be available to accommodate the
scaled up Instrument Control Electronics (see 6.2.1, VME Instrument Controller Chassis).
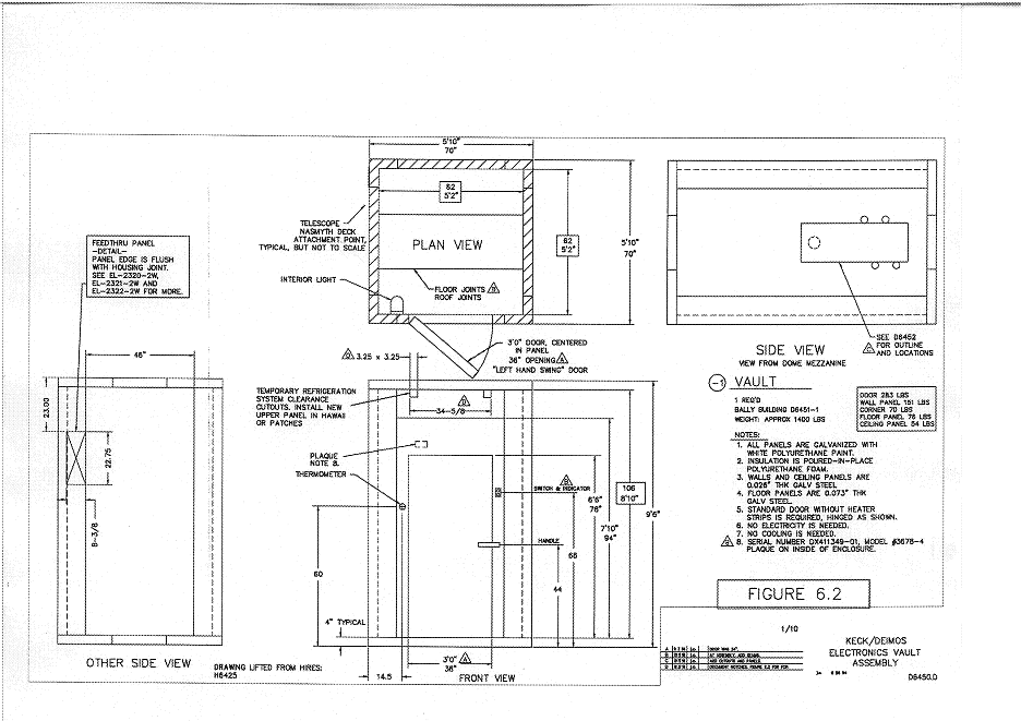
The Vault is a modular building by Bally. It is shown in Figure 6.2 and is 9 ft. 6 in. tall
by 5 ft. 10 in. square on the outside, and has inside dimensions of 8 ft. 10 in. tall by 5 ft. 2
in. square. The door size is 36 in. wide by 78 in. tall. If required, the modular vault can be
made larger by expanding the walls in 23 inch units -- this is not anticipated.
On HIRES, "feedthrough panels" with connectors on the exterior and interior walls of
the Vault were used to connect cables from inside the Vault to various instrument control
components inside the Instrument Enclosure. The feedthrough panels on HIRES will not
be used for DEIMOS. All this wiring will go through a hole in one wall, and this will be
sealed to isolate light and heat. This will eliminate about $40,000 in connectors and add to
instrument reliability.
In detail, the components inside the Electronics Vault consist of the following units:
These units are described in the following sections.
6.2.1 VME Instrument Controller Chassis
Initial estimates for the VME Instrument Controller chassis have been based on those
used for the HIRES system, where the number of axes of motor and component control
have been approximately scaled up. The HIRES VME chassis services 75 digital outputs,
73 digital inputs and 14 servo motors. It has 96 digital inputs and outputs available as
presently configured and could readily be expanded to control 18 servo motors using the
same revision level of motor controller cards. Room is also available for additional digital
and analog I/O cards.
Given the latest capabilities of motor controller cards (see 6.2.3, Galil Motor Controller Cards) and other VME card options, a single VME chassis can now be used to control
up to 36 or 40 motors, plus additional digital and analog I/O. While further clarification of
the requirement for independence of motor controllers is needed, we are anticipating using
just one VME chassis.
Note: Independent control and simultaneous running capabilities for the motors also
necessitates additional motor driver power supplies for a fixed number of motors. This
may result in a substantial increase in rack space usage, even with only one VME chassis
for the double beam configuration (refer to Section 6.2.10, Motor Power Supplies).
The following is a list of cards anticipated for the DEIMOS VME Chassis (Single
Beam/Double Beam numbers are shown):
The following sections provide more information on these cards.
6.2.2 CPU
The Sparc 1E is now an obsolete CPU card for the VME chassis; however, there are
many higher performance CPU cards available today to choose from. Current options
which need to be investigated further include:
Given the advancements in technology as seen with the Galil motor controller cards (following section), this is a matter of looking into our current options to determine exactly
which manufacturer and model we will use today with the CPU.
6.2.3 Galil Motor Controller Cards
As mentioned earlier, personnel at Lick and Keck are familiar with the dc motors, controllers, and amplifiers from Galil. Also, by using the same motors and controllers, Keck
personnel will be able to use spare HIRES motors if there is a shortage of supplies on
hand, and likewise they could use spare DEIMOS amplifiers for HIRES.
The latest Galil motor controller cards as of 9/94 are model number DMC 1300.
These have several enhancements over the DMC300 series used with HIRES. Since the
early estimates for DEIMOS were based on HIRES, this provides an opportunity to reduce
costs and improve instrument control performance.
The following is a list of significant enhancements (favorably) impacting the design
for DEIMOS:
Note: The synchronization of the controller cards is determined by software. Only the
uncommitted channels of digital I/O are mentioned above; various other dedicated I/O are
also available on these cards.
Each of these enhancements directly relates to issues and requirements for DEIMOS.
A total number of 5 controller cards for 21 motors is required for the single-sided system
(3 motors will not be used initially). A total of 8 controller cards is required for the 31
motors in the two sided system.
Note: If only a single beam is built, we will nevertheless install a spare motor controller
card. (These are the three motors not used with the single beam configuration -- refer to
Tables 6.1 and 6.2.) These motors can be used to test the 3 fine locating motors needed for
the double beam configuration. For the purpose of this test, an amplifier and power supply
from another stage can also be temporarily re-wired.
6.2.4 Digital Input/Output
In view of the enhancements to the Galil motor controller, it is our intent to use the
digital I/O (not previously available) on the controller cards to reduce the number of additional digital I/O cards significantly. The dual port RAM feature also allows the flexibility
to control and monitor digital I/O across different controller cards, e.g., controller card #2
can monitor/control the I/O connected to controller card #3.
The Xycom model XVME220 (for 32 channels of opto-isolated digital output) and
model XVME212 (for 32 channels of opto-isolated digital input) are still available and
will serve well for additional I/O boards. HIRES used 75 outputs and 73 inputs with 14
servo motors. Scaling this to DEIMOS with 21 motors for a Single Beam and 31 motors
for the Double Beam gives us the anticipated total numbers of I/O channels:
Single Beam: approx. 114 outputs, and 111 inputs.
Note: The double beam numbers above come from an earlier estimation of 35 motors for
the two beam system.
At this point in the design process, the digital I/O count is not a very firm number.
However, with 21 motors planned for a single-beam DEIMOS spectrograph, we can plan
on five motor controller cards and thus 40 extra digital inputs and 40 non-isolated, extra
outputs on these cards as well. The total number of extra digital I/O cards for the single
beam DEIMOS should then be the same as in HIRES -- namely 3 of each. Likewise for
the double beam system, we anticipate 64 extra digital I/O on 8 controller cards, which
should result in a need for no more than a total of 4 digital I/O cards of each.
Note: We will need to add opto-isolators in order to use the non-isolated digital outputs mentioned above -- HIRES already utilizes the required type of isolators in other
parts of the system.
6.2.5 Analog Input/Output
With the new controller cards, 7 analog inputs are now available on each, making a
total of 35 on the single-beam system and 56 analog inputs with a double-beam system.
Additional analog I/O will be obtained from the same boards used in HIRES -- the
Xycom model XVME-540. The XVME-540 board has 4 analog outputs and 32 analog
inputs (each with 12 bits resolution). In HIRES 3 analog outputs and 19 analog inputs are
used. The ratios we are using to approximate the scaled up requirements are 1.5x for the
single-beam system and 2.5x for the double-beam system. This gives us a requirement of:
Single Beam: approx. 5 outputs, and 30 inputs.
However, the analog outputs are used primarily for the calibration lamps. Since we anticipate approximately 12 lamps total (refer to Section 6.2.13, Calibration Lamps and Supplies), we anticipate up to 12 analog outputs. Because all the input requirements should
now be met with analog inputs on the new motor controller cards, a different VME card is
anticipated for DEIMOS with up to 12 analog outputs (no analog inputs). One such card
is the VME Microsystems International Corporation (VMIC) model number VMIVME4100. This can be ordered with 4, 8, 12, or 16 analog output channels which will allow us
to save even more money.
6.2.6 Test and Debug Cards
The following cards are available for testing and debugging purposes:
This card can be used to write basic motion control programs for quick tests and
debugging before more complicated C code is written. The card is installed and used during initial development and then removed to use the system CPU card with the latest code.
This card can be used to monitor the VME bus if this level of troubleshooting is
needed.
This interface card can be used for quick testing and debugging with development
software available from Galil, which significantly simplifies initial development. This
software also includes development tools for tuning the servo motors plus a communications interface to an IBM PC. The IBM PC communications interface may have a number
of other future applications as well. It is also possible to leave this card in the VME cage
for on-line diagnostics, interfacing, and tuning.
Note: The Galil development software resides on the IBM PC. The model number for
this software is SK-1300 and its cost is $20 - with source code.
6.2.7 Motor Driver/Amplifiers and Chassis
The motor driver/amplifiers will be similar to those used in HIRES. The latest version, made with Surface Mount Technology, is said to be more reliable and compact. At
this point, the package size is about 1/2 as large, so the rack space per amplifier is also
about 1/2 as large. Since we will need one per motor, allowing for up to 36 motors we can
plan on 3 rows of up to 12 amplifiers instead of the 2 rows of 7 amplifiers currently used in
HIRES. Since the HIRES rack has space for up to 21 of these amplifiers (3 rows), the
DEIMOS rack space requirement for the amplifiers will be the same as in HIRES. In
HIRES, these are mounted in the front of a chassis with other components behind them,
and the total rack height is 15.75 inches.
6.2.8 Controller/Motor Interconnect Chassis
As a result of the additional motors and driver amplifiers, the interconnect chassis will
grow by about 1.5 times the vertical dimension of that on HIRES. HIRES has a 14 inch
interconnect chassis; therefore, we will plan on 21 inches for DEIMOS. The details of the
layout have not yet been drawn.
6.2.9 VME Power Supply
The VME power supply for HIRES has been chosen to support a full complement of
the HIRES boards plus the CCD Controller boards. On DEIMOS we will have additional
VME cards in the chassis; therefore, we anticipate about the same total required power
since the CCD Controller cage and boards will be removed from the Vault. A more
detailed calculation of the required currents and voltages has yet to be done. The planned
VME power supply delivers: +5V @ 90A, +12V @ 20A, and -12V @ 5A. This is a total
output power of 750 watts that we will plan on for DEIMOS.
The VME power supply supplies power to the VME cards via the VME backplane.
Refer to Section 6.2.1, VME Instrument Controller Chassis for a list of these boards.
6.2.10 Motor Power Supplies
For HIRES, only three motor driver power supplies were required for all 14 dc servo
motors. Since the DMC300 series controllers do not drive the axes simultaneously and
the DMC1300 controllers can and will do this, there is an increased requirement for
motor power supplies. The exact increase in this requirement is based on the maximum
number of axes that might be moved simultaneously.
To check the space requirements, a total current rating of up to 10 amps per motor
multiplied by 32 motors has been used as a worst case (a more realistic case is considered
below). HIRES has 3 motor supplies each supplying up to 22 amps @ 28 volts (616
watts). With this highly overstated worst case, a total of 15 motor power supplies instead
of the three now in HIRES is needed. This quick calculation has made the space look very
well allocated with the current plan. If needed, we can use a supplemental rack for these
additional power supplies.
The motor load requirement of an individual stage determines the actual current
required. Since most of the stages don't require the maximum current stated above (which
is the limitation of the motor driver/amplifier), more reductions in this figure can be made.
To consider some of the actual loading of the motors, we use a slightly more realistic estimate and assume that 3 motors can be driven by each of these 22 amp supplies. This is
justified by noting that on HIRES, most stages have a 3 amp fuse in series with the motor.
This brings us down to 11 motor supplies for 33 motors.
Additionally, a separate power supply for the large main drive to rotate the entire
instrument enclosure will be located in the Vault. The maximum torque of this motor is
achieved with about 22 amps @ 60 volts. The worst case is then about 1300 watts for this
power supply, but this will again depend on the actual load requirement.
6.2.11 Ion Pumps and Power
The CCD Controller Ion Pumps are located on the CCD Dewars, inside the instrument
enclosure. The high voltage wiring will come into the Vault where the two control units
reside (one for each Dewar). The AC power for the Control Unit is supplied in the Vault,
and an opto-isolated input relay in the interconnect chassis monitors the presence of the
AC power to the Control Units.
6.2.12 Encoder Interpolation Amplifiers
On HIRES, two motor stages use Heidenhain Interpolation Amplifiers to obtain a
greater required resolution. These interpolation amplifiers were used for the cross disperser and echelle stages; however, DEIMOS will not have these continuous adjustments
for the grating. The result is that these amplifiers are not required for DEIMOS as long
as we continue with the plan to have discrete positioning control of the gratings.
6.2.13 Calibration Lamps and Supplies
The calibration lamps are controlled via the analog I/O covered in Section 6.2.5., Analog Input/Output. There are several lamps planned for DEIMOS.
These are:
In HIRES there are six calibration lamps, three power supplies with a total of 185 watts of
output capacity for the three Quartz Lamps and an additional 400V, 60mA power supply
for the Hollow Cathode Lamps (24 watts). We assume the worst case where the power
requirement for the DEIMOS lamps is as high as that of the Quartz lamps. The ratio of the
three HIRES lamps to 12 DEIMOS lamps gives us a total of 740 watts anticipated for
DEIMOS. These power supplies will all be in the Vault.
6.2.14 Opto-Isolator Supply Relays
Solid state opto-isolator relays and relay control panels will be used to drive a number
of AC devices in the instrument. These devices include fractional HP motors, brakes,
lamps and covers. These relay control panels also contain logic to sense if the devices
powered by the relays are functioning properly. This will be the same as or similar to
those in HIRES.
6.2.15 UPS
The intent of the UPS (Uninterruptable Power Source) is to provide full power to the
instrument for approximately 1 hour after a power failure. (Note: A separate UPS for the
VME Crate in the Control Room is also required.) This will keep proper signals applied
to the motor stages and other instrument control electronics in the event of a power outage
until power can be restored. In the event of a prolonged power outage, the astronomer will
have time to manually request the CCD to dump its data into the VME memory for storage
until power is restored. The HIRES UPS is a 2KVA unit. The increase in total wattage for
DEIMOS is outlined in Section 6.8, Power and Heat Budget. For DEIMOS we may need
as much as a 5KVA UPS. This assumes that everything is wired through the UPS as in
HIRES. If this becomes a problem due to space in the Vault, we can look into bypassing
the UPS where some of the incoming AC power is concerned.
The same type of dc servo motors will be used as in HIRES. With one exception,
these are Galil model 50/1000 motors with high altitude brushes which come assembled
with a standard encoder. The exception is the larger main drive motor that will rotate the
instrument; this is a Galil model 500/1000C motor. All motors except this main drive
motor will be located in the Instrument Enclosure.
Note: The power supplies for the DC servo motors have been covered under Section
6.2.10, Motor Power Supplies.
Other types of devices such as brakes, lamps, and air cylinder solenoids will again be
similar to those in the HIRES system.
Other technology such as liquid crystal shutters, if desired could be incorporated; however, nothing definite has been planned at this time. Liquid crystal shutters might be useful for modulating the light source in the flexure compensation system.
The encoders will be the same as those used in HIRES. These are rotary encoders
which come mounted on the end of the 50/1000 motor and 500/1000C motor. These
encoders have two channels in quadrature to produce 4000 counts per revolution.
The worst case time required to find the home position for the encoders can be approximated by the times required to complete full travel for each of the motor stages. From the
Mechanical Description in Chapter 5, this is approximately 30 seconds for many stages
including the filter slide, the grating slide, grating tilt, TV focus motion, and TV aperture
motion. Other stages home in less time.
The notable exceptions to this are:
It is reasonable to assume that these latter two "homing" operations will not be preformed frequently, and the software can warn the operator about them when this is done.
At present, the plan is to have any operation of a function on one side capable of
occurring independently of any other operation on the other side. (The exception here of
course, is that one side can't move the instrument in one direction while the other side
wants to move it somewhere else.) The consideration of whether "independent operation"
also includes power to the Instrument Control Electronics and the VME chassis has been
discussed and rejected after considering the following:
Unless we discover that the lack of the more extreme independence described above is
viewed as a significant inconvenience to operators/astronomers or maintenance personnel,
these considerations point out that the benefits do not justify the cost. Functional independence will still be achieved to a great extent.
All function execution times are given in Chapter 5. As should be clear, we intend to
execute multiple functions in parallel to save time. In Chapter 5 it was estimated that we
should anticipate having to move at least 8 motors in parallel and probably a few more.
It is the intent to ensure that the maximum execution time for commonly executed
series of functions not exceed the time required for the slowest stage involved for a reasonable worst-case motion. This in principle is possible since each motor stage can be
controlled simultaneously with any other stages if required. The determining factor will be
based on power supplies. This will be based on a motor timing diagram analysis similar to
that shown in Figure 5.9. At present, for planning purposes we have adopted an initial
range of 6 to 12 power supplies (the latter would run all 31 motors simultaneously). After
applying the impact of the number of realistic motor load requirements to the power supply requirements, both numbers of this range should decrease significantly.
The total power supply requirements and heat dissipation compared to HIRES do not
appear to be a concern.
To minimize the power supply requirement for the system, the motor timing diagram
will be optimized. Stages whose motion is completed in a very short time relative to others will be strategically started during function executions so that a minimum of total current is required. As stated above, it is our goal to stay within the total time of the stage that
takes the longest time; however, if the difference between 30 seconds and 32 seconds to
perform a function means that we can eliminate 3 big power supplies we plan to do it.
The following figures are based on 6 motor power supplies (to run at least 16 motors
simultaneously) of the type used in HIRES:
Both totals above are clearly overestimating the actual power usage (most of these figures come from maximum supply capacity). However, we can use the ratio of these figures to get a rough estimate of the power usage. This is where the 5KVA figure in Section
6.2.15, UPS came from. Two key points are the motor loading and the analysis to decide
on how many we want to run at one time. After this is done, the heat budget can be looked
into in further detail. For now, this ratio gives us a first approximation of about 2.3 times
the power usage of HIRES. A major component is the additional power supplies for the
motors. This ratio is also about the same as the ratio of the number of motors in DEIMOS
(31) to the number in HIRES (14).
Note: The table above represents a worst case estimate of power usage and not the
heat dissipation. Since most of this power usage is due to motor supplies and most motors
are idle much more often than in motion, the average heat dissipation is not as high as the
numbers shown above might suggest. More calculations are needed for the heat budget
estimate.
The major question yet to be answered is how many motors will we want to run at the
same time. Once this question is answered, a number of other questions can be addressed
such as -- How many motor power supplies do we need? How much heat will be generated in the Vault? How long will it take for a common set of functions to be executed? At
this point we have determined some upper limits to these variables.
Double Beam: approx. 190 outputs, and 185 inputs.
Double Beam: approx. 8 outputs, and 48 inputs.
6.3 DC Servo Motors
6.4 Other AC Devices
6.5 Encoders
6.6 Independent Sides of the Spectrograph
6.7 Function Execution Times
6.8 Power and Heat Budget
Major Power Source HIRES DEIMOS VME Supply 750 W 750 W Motor Supplies (#1 to #5) 1800 W 3000 W Lamp Supplies 185 W 740 W 24VAC Transformers 270 W 1080 W Main Motor Supply (#6) --- 1300 W Total 3005 W 6870 W 6.9 Major Outstanding Design Questions
GO TO CHAPTER 7